Basement Flat SW19
£1,600 pcm
Property Summary
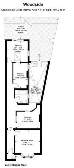
EXCELLENT LOCATION. SPACIOUS 3/4 BEDROOM GARDEN FLAT: situated a few minutes from Wimbledon rail & underground and within easy reach of many amenities is this lovely 3/4 bedroom flat - perfect for sharers AVAILABLE NOW.
Full Details
In the Heart of Wimbledon moments from the station lies this Beautifully Spacious 3/4 double bedroom flat. The accommodation comprises an excellent sized conservatory lounge & patio/lawn garden- ideal for entertaining, fitted kitchen, three double bedrooms & fourth room that can be used as bedroom or 2nd reception, bathroom/WC. In fantastic condition throughout the flat benefits from excellent light levels and ample storage. Enviably located a short distance from Wimbledons shops, restaurants and its excellent transport links are right on your doorstep. Contact the lettings team immediately to arrange a viewing on 020 8689 0208

















